Googong Office: 33 Leon St, Googong, 2620 NSW,

shape

Project Management:

Project Management:

Construction project management involves planning, coordinating, and controlling a construction project from start to finish. Here's a comprehensive overview:

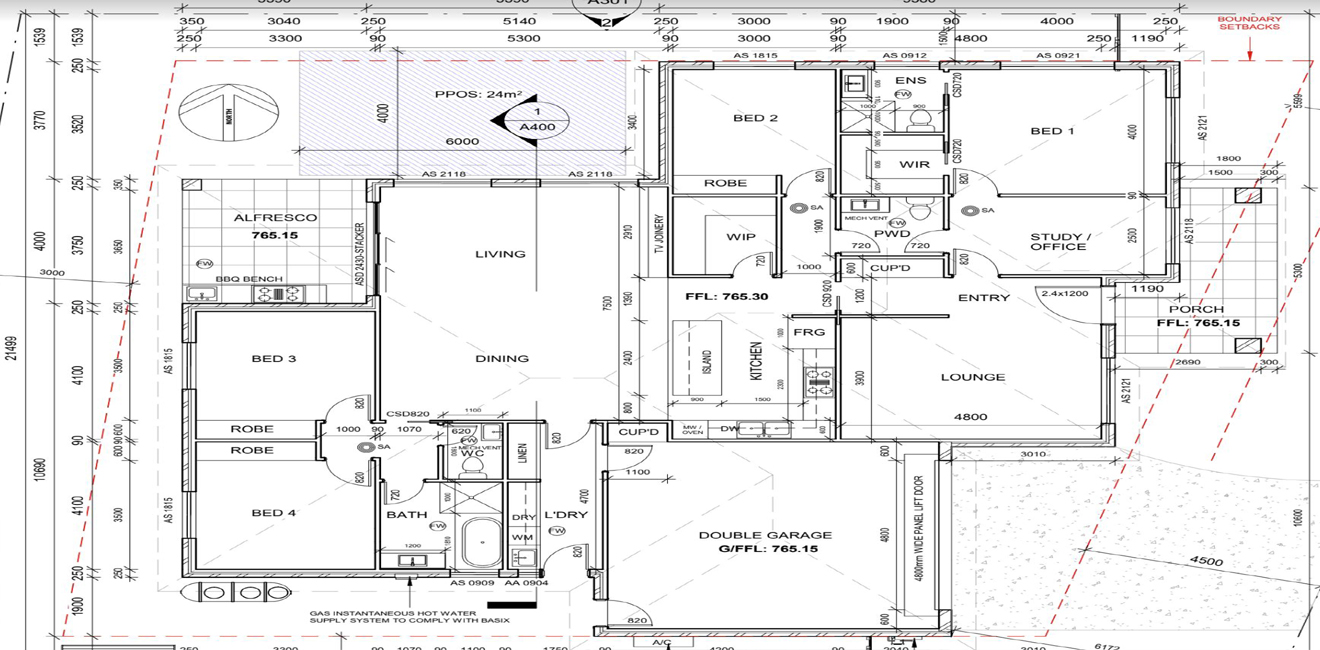
Service Details

Key Components:

  • Project Planning: Define scope, goals, timelines, budget, and resources.
  • Risk Management: Identify and mitigate potential risks and issues.
  • Schedule Management: Create and manage project schedules and timelines.
  • Budgeting and Cost Control: Establish and control project expenses.
  • Quality Management: Ensure compliance with quality standards and specifications.
  • Resource Allocation: Assign and manage labor, materials, and equipment.
  • Communication and Stakeholder Management: Coordinate with team members, clients, and stakeholders.
  • Monitoring and Control: Track progress, identify variances, and take corrective action.

    Phases of Construction Project Management:

  • Initiation: Define project scope and objectives.
  • Planning: Develop detailed project plans and schedules.
  • Execution: Carry out construction work according to plans.
  • Monitoring and Control: Track progress and make adjustments as needed.
  • Closure: Complete final inspections, obtain occupancy permits, and hand over the project.
service-details
service-details
service-details

    Tools and Techniques:

  • Project Management Software (PMS):_ Utilize tools like Procore, MS Project, or Asana.
  • Gantt Charts and Schedules:_ Visualize project timelines and dependencies.
  • Budgeting and Cost Management Tools:_ Use software like Excel or specialized cost management tools
  • Risk Management Frameworks:_ Apply frameworks like PMBOK or PRINCE2.
  • Collaboration and Communication Tools:_ Leverage platforms like Slack or Trello.

    Best Practices

  • Clear Communication: Ensure transparent and regular communication among stakeholders.
  • Proactive Risk Management: Identify and address potential issues early.
  • Adaptive Planning: Be prepared to adjust plans in response to changing project conditions.
  • Quality Control: Implement robust quality control processes.
  • Continuous Monitoring and Improvement: Regularly review and optimize project performance.

By following these guidelines and leveraging the right tools and techniques, construction project managers can ensure successful project outcomes, meet client expectations, and maintain profitability.